pla | Phillip  Lehn Architect

environmental design

pla | Phillip  Lehn Architect

environmental design

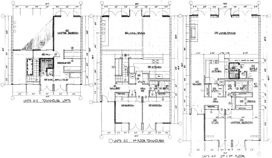
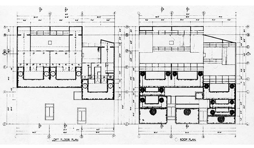
Old Town Tacoma Mixed Use

Tacoma, WA

 

This proposed four story mixed-use development in the heart of Old Town Tacoma featured office condominiums on the first level above covered parking, a single floor of three residential condominiums on the second level and three, two story townhouses on the third and forth levels.  The north side would have enjoyed unobstructed views of Commencement Bay and the sunny south side was terraced to give each dwelling a private garden terrace and passive solar heat.  Soon after its construction drawings were submitted for a building permit, the neighborhood persuaded the City to downzone the property to stop this and a neighboring project.